Sind Sie auf der Suche nach einem stilvollen Oberlicht ohne Unterbrechungen? Dieses Glasdachfenster für das flache oder leicht geneigte Dach ist eine moderne Alternative zur traditionellen Lichtkuppel: 1 Scheibe aus hochwertigem Isolierglas ohne Pfosten. Von 50 bis 380 cm, und alles dazwischen. Erhältlich als freistehende Version oder als direkt an die Fassade zu montieren.
Rückruf anfordern Kontaktieren Sie uns
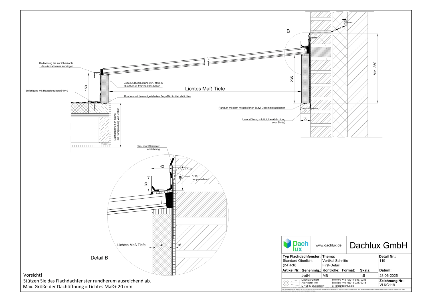
Wir arbeiten derzeit an einer vollständig aktualisierten Produktbroschüre. Bis dahin können Sie die Montageanleitung hier herunterladen.
Download Broschüre
Besteht aus einer einzigen Scheibe, ohne Unterbrechungen
Mehr als 900 Standardgrößen: bis zu 380 cm.
Komplett vorgefertigt einschließlich des Aufsatzkranzes
2fach verglast, hochwertig isolierter Aufsatzkranz, formschönes Design
10 Jahre Garantie
Glashalterungen an 3 Seiten; An der Vorderseite laufen Wasser und Schmutz ungehindert ab
Oberlichter von Dachlux erfüllen die höchsten Anforderungen an Isolierung und Sicherheit. Sie wurden von der unabhängigen notifizierten Stelle SKG-IKOB umfassend auf wesentliche Eigenschaften getestet.

Wir sind uns alle bewusst, wie essentiell es ist, täglich ausreichend Tageslicht zu bekommen und hin und wieder frische Luft zu schnappen. Aufgrund des hektischen Alltags und der zunehmenden Arbeit von zu Hause aus kann dies eine echte Herausforderung sein. Dachlux präsentiert die Lösung: qualitativ hochwertige Flachdachfenster und Oberlichter, die Ihnen den Genuss von natürlichem Licht täglich ermöglichen!
Sehen Sie sich in der Broschüre alle technischen Daten an. Oder herunterladen Sie hier die Produktzeichnungen:
Zeichnungen (pdf sowie auch dwg).

Dachlux entwirft, produziert und liefert elegante Flachdach-Fenster, Oberlichter und Lichtbänder. Der Produktionsprozess ist so effizient gestaltet, dass wir viele Produkte mit unterschiedlichen Optionen und Extras in über 900 Standardabmessungen herstellen können. So können wir Maßarbeit und hohe Qualität zu einem attraktiven Preis liefern.
Die Belüftung muss nicht immer aus einem ganzen Fensterflügel bestehen, der geöffnet und geschlossen werden kann.
In manchen Situationen reicht ein Lüftungsgitter aus. Neben unserem elektrisch zu öffnenden Flachfenster bieten wir auch diese werkseitig integrierte Gitteroption zur Belüftung standardmäßig an.
Erfahren Sie mehr über diese vernüftige Dachlux-Lösung: Lüftungsgitter im Aufsatzkranz
Rückruf anfordern Kontaktieren Sie uns
Wir arbeiten derzeit an einer vollständig aktualisierten Produktbroschüre. Bis dahin können Sie die Montageanleitung hier herunterladen.
Download Broschüre
Direkter Kontakt: Bora Yalcin
E: b.yalcin@dachlux.de
M: +49 (0)160 1192 790
Rückruf anfordern
© Copyright 2025 Dachlux.de • AVB • Impressum • Widerrufsbelehrung • Datenschutzerklärung
Wilt u op de hoogte blijven van de laatste ontwikkelingen en inspiratie ontvangen? Schrijf u dan in voor de nieuwsbrief en we houden u op de hoogte.